Municipality Building

Project Date 2024
Title Municipality Building
Type Individual
Programs Revit, Autocad, Photoshop, Enscape, AI

The municipal building is critical for the organized and efficient management of a city. The offices of the mayor, council members, and other municipal employees are located here, and important decisions regarding the city are made within these walls. Citizens come to the municipal building to take advantage of municipal services. Many services, such as zoning permits, marriage certificates, and tax payments, are provided here. Additionally, the municipal building serves as a hub for city council meetings, public events, and other important gatherings. It is a place where the community can come together to discuss and resolve issues. Citizens can visit the municipal building to obtain information about the city, file complaints, or receive consultation services. This building is a place where the public can directly communicate with the local government. In many cities, municipal buildings can be architecturally significant and historically valuable structures. These buildings are also considered part of the city's cultural heritage.

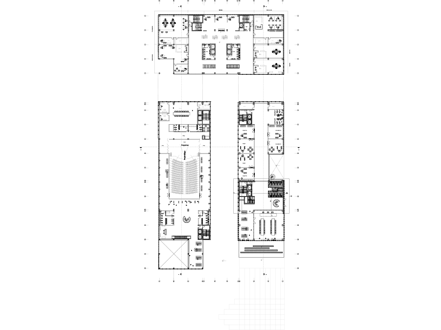
The project site is located in a rapidly developing district with a high concentration of residential complexes and educational institutions. It is situated at the intersection of two different tram lines, and due to its transportation options, there are cafes and restaurants in the vicinity. The surrounding area is relatively quieter during the day compared to the evening, making it an efficient location for a municipal building. Initially, a more enclosed and inward-looking design was planned, but it eventually evolved into a design that includes open spaces for public use. On the ground floor, there are streets connecting the north-south and east-west axes, and the mass can be considered as three blocks on the ground floor. These blocks can be thought of as directorates, multipurpose halls, and the mayor's block. On the top floor, these three masses merge to create a sense of unity both inside and outside. The north-south axis of the building opens from the directorates to a square. This square can be used as a market area for women to promote handicrafts and local products on non-working days of the municipality.